
本館客室が新しく生まれ変わりました。2026年5月にリニューアルオープンの予定です。
ご予約開始は、HPのお知らせにてご案内いたします。
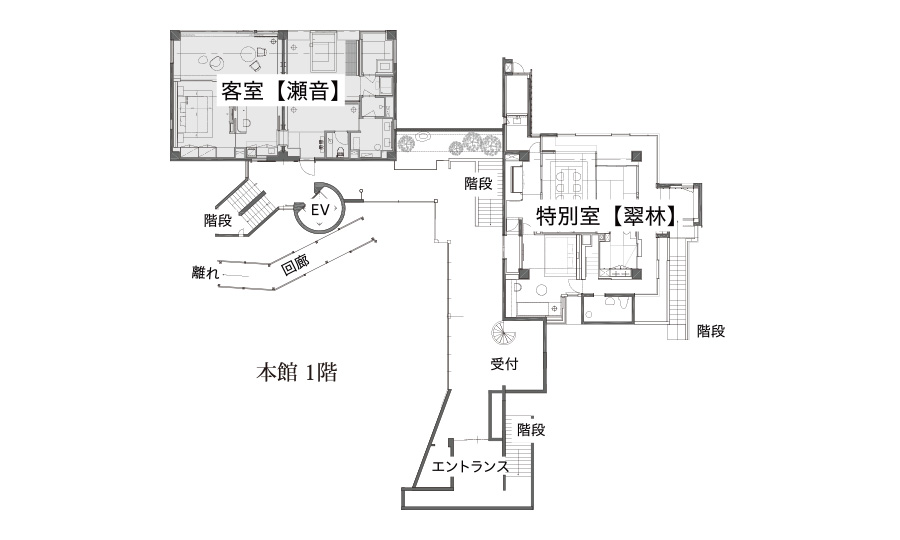
木の風情ある館内の1階、2階、別室にそれぞれ設えた特別な客室は、広々とした空間を贅沢に使った和モダンテイストで、
藤木川のパノラマの景色をのぞみます。
各客室は露天風呂とプライベートサウナを備えたリラクゼーション仕様。
お食事は本館の3つのダイニングで、ごゆっくりお楽しみ下さい。
こちらの客室は、2026年5月にオープンの予定です。
120平米の広々とした和モダンスタイルのお部屋。窓の外には奥湯河原の深い緑と清らかな流れが広がります。客室には眺望を独り占めできる展望露天風呂とサウナをご用意。自然に包まれながら、思うままに心ほどける癒しの時間をお楽しみください。
広縁リビング、ベッドルーム、前室、展望露天風呂、サウナ、水風呂
セミダブルベッド2台(W1200*D2100・シモンズ社共同開発)、TV、ミニバー(冷蔵・冷凍庫)、電子レンジ、ケトル、ラウンジチェア、金庫、クローゼット、タオルウォーマー、空気清浄/加湿機、USEN440ch、Bluetoothスピーカー、USBコンセント、Wi-fi完備
バスローブ、パジャマ、タオル、バスタオル、ソープ、シャンプー、コンディショナー、スキンケアセット(洗顔料・化粧水・乳液)、ハミガキセット、カミソリ、シャワーキャップ、くし、コットン、綿棒、ヘアターバン、ブラシ、衣類用消臭スプレー
こちらの客室は、2026年5月にオープンの予定です。
庭園付きの広々とした特別室は、専用アプローチを通って客室に入るプライベート空間のお部屋。4名様までご宿泊可能です。展望露天風呂とサウナを備え、ご家族やグループ様だけでゆったりとご滞在いただけます。和室もあり、広々とした空間です。
和室リビング、和室(お布団2)、ベッドルーム(ベッド2)、書斎、展望露天風呂、サウナ、水風呂
セミダブルベッド2台(W1200*D2100・シモンズ社共同開発)、お布団、TV、ミニバー(冷蔵・冷凍庫)、電子レンジ、ケトル、ラウンジチェア、金庫、クローゼット、タオルウォーマー、空気清浄/加湿機、USEN440ch、Bluetoothスピーカー、USBコンセント、Wi-fi完備
バスローブ、パジャマ、タオル、バスタオル、ソープ、シャンプー、コンディショナー、スキンケアセット(洗顔料・化粧水・乳液)、ハミガキセット、カミソリ、シャワーキャップ、くし、コットン、綿棒、ヘアターバン、ブラシ、衣類用消臭スプレー
本館横に立ち並ぶ、一棟貸しの離れ。日本邸宅の風情ある完全プライベート客室では別荘に居るような時間を過ごしながら、
旅館「結唯(ゆい)」のお食事やサービスをお楽しみいただけます。
木漏れ陽の中で読書にふけり、鳥のさえずりの中、掛け流しの湯浴みで芯から温まる。
ライトアップされた木々に抱かれ美酒に酔う夕べは、あなただけの最上の寛ぎ時間。
「別荘+旅館」の快適で贅沢なひとときを、どうぞごゆっくりお楽しみ下さい。
昭和の時代を懐かしむような平屋造りの邸宅。正面には水盤が広がり、まるで水辺に浮かんだ別荘にいるような錯覚をおぼえます。自然に抱かれたガラス張りのラウンジで、お酒や読書、大人の語らい時間をお過ごし下さい。
和室スペース(掘りごたつ)、展望ラウンジ、ベッドルーム、ワイドテラス、展望露天風呂、専用庭園(30㎡)
セミダブルベッド2台(W1200*D2100・シモンズ社共同開発)、TV、ミニバー(冷蔵・冷凍庫)、ラウンジチェア、座椅子、金庫、クローゼット、タオルウォーマー、空気清浄/加湿機、洗面温風機、USEN440ch、Bluetoothスピーカー、USBコンセント、Wi-fi完備
バスローブ、作務衣、タオル、バスタオル、ソープ、シャンプー、コンディショナー、スキンケアセット(洗顔料・化粧水・乳液)、ハミガキセット、カミソリ、シャワーキャップ、くし、コットン、綿棒、ヘアターバン、ブラシ、衣類用消臭スプレー
「憩い」と「安らぎ」のスペースを両翼にもつ離れは、平成〜未来のクールな和モダンをイメージ。155平米の広さをもつ、特別客室です。前面にパノラマの大景色が広がるワイドリビングは、200インチスクリーン+5.1chの音響を完備。シアタールームとしてもお楽しみいただけます。
和室スペース(掘りごたつ)、展望ワイドリビング、キッチン、ベッドルーム、ゲストルーム、ワイドテラス、展望露天風呂、専用庭園(30㎡)
セミダブルベッド4台(W1200*D2100・シモンズ社共同開発)、リビングソファー、座椅子、TV、ミニバー(冷蔵・冷凍庫)、金庫、クローゼット、タオルウォーマー、空気清浄/加湿機、洗面温風機、スクリーン(200inch)、音響設備(5.1ch)、USEN440ch、Bluetoothスピーカー、USBコンセント、Wi-fi完備
バスローブ、作務衣、タオル、バスタオル、ソープ、シャンプー、コンディショナー、スキンケアセット(洗顔料・化粧水・乳液)、ハミガキセット、カミソリ、シャワーキャップ、くし、コットン、綿棒、ヘアターバン、ブラシ、衣類用消臭スプレー
玄関から奥まで、一直線に長く伸びた通路、露天風呂へと続く二階の渡り廊下が、江戸の町屋文化をイメージさせる離れ。和室リビングから繋がる広縁の外には、美しい借景が広がり、和紙を透過する行燈の灯が、心休まる空間を演出しています。
和室スペース(掘りごたつ)、広縁、ベッドルーム、ワイドテラス、展望露天風呂、専用庭園(30㎡)
セミダブルベッド2台(W1200*D2100・シモンズ社共同開発)、ラウンジチェア、座椅子、TV、ミニバー(冷蔵・冷凍庫)、金庫、クローゼット、タオルウォーマー、空気清浄/加湿機、洗面温風機、USEN440ch、Bluetoothスピーカー、USBコンセント、Wi-fi完備
バスローブ、作務衣、タオル、バスタオル、ソープ、シャンプー、コンディショナー、スキンケアセット(洗顔料・化粧水・乳液)、ハミガキセット、カミソリ、シャワーキャップ、くし、コットン、綿棒、ヘアターバン、ブラシ、衣類用消臭スプレー
明治〜大正の時代を映した現代レトロな建屋です。客室を通り抜ける水路には橋がかけられ、ワイドテラスにはさらに東屋が連なります。温泉には二つの露天風呂があり、良質な温泉を心ゆくまでお楽しみいただけます。
和室スペース(掘りごたつ)、ベッドルーム、竹縁、ワイドテラス、露天風呂、東屋、専用庭園(30㎡)
セミダブルベッド2台(W1200*D2100・シモンズ社共同開発)、ラウンジチェア、座椅子、TV、ミニバー(冷蔵・冷凍庫)、金庫、クローゼット、タオルウォーマー、空気清浄/加湿機、洗面温風機、USEN440ch、Bluetoothスピーカー、USBコンセント、Wi-fi完備
バスローブ、作務衣、タオル、バスタオル、ソープ、シャンプー、コンディショナー、スキンケアセット(洗顔料・化粧水・乳液)、ハミガキセット、カミソリ、シャワーキャップ、くし、コットン、綿棒、ヘアターバン、ブラシ、衣類用消臭スプレー